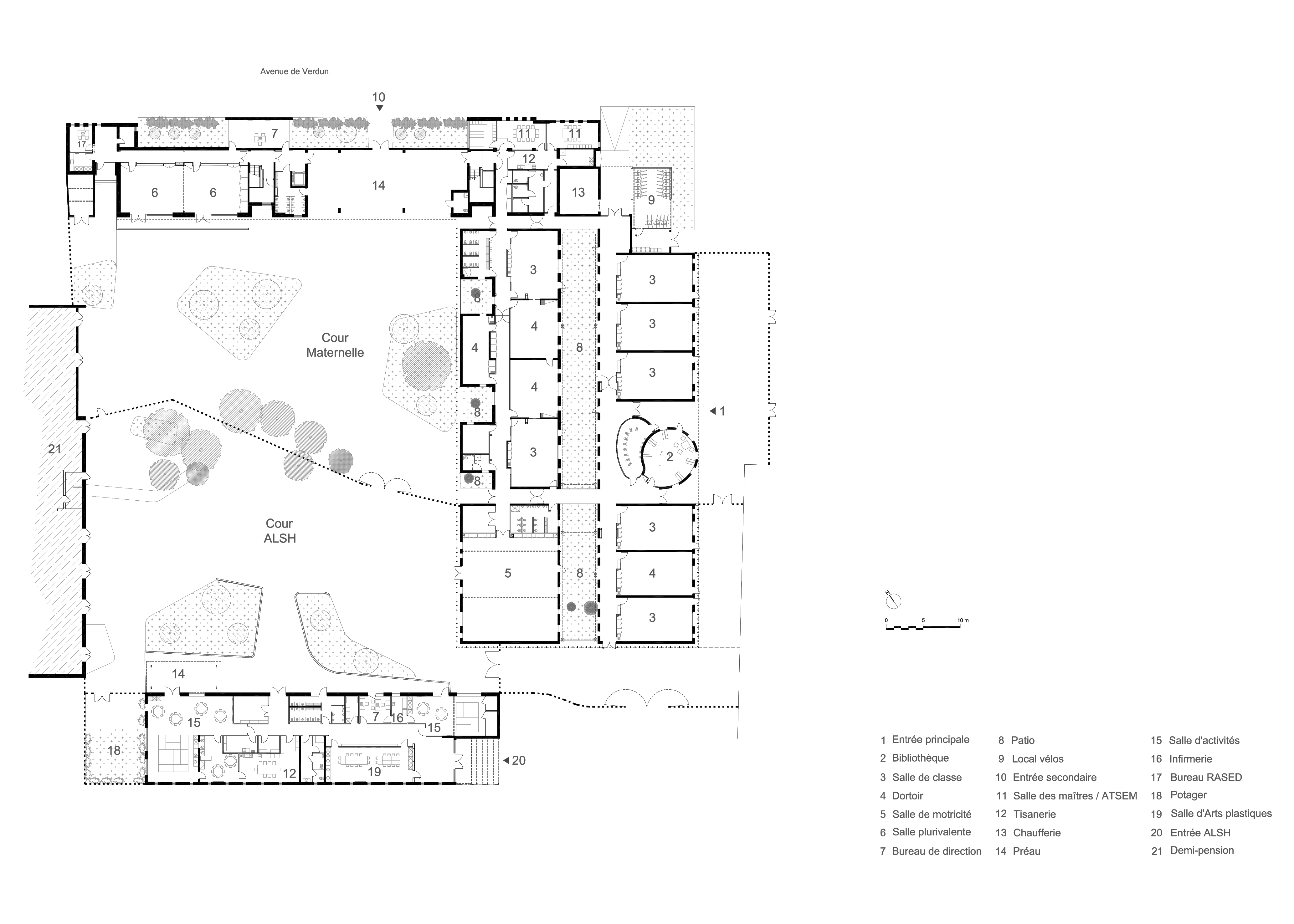
Réhabilitation de l’école maternelle Pablo Picasso et extension de l’ALSH île aux enfants, Bruges(33), France, 2023
Isolation par l’extérieur parement bois, chantier en site occupé et à faible impact environnemental.














Lieu : Bruges (33)
Programme : 8 salles de classe et un centre de loisir
Surface : 2 673 m²
Budget travaux : 2 557 957 €
Calendrier : 2017-2023
Maitre d’ouvrage : commune de Bruges
Architecte : VAZISTAS
Mission : complète
B.E.T. : Betem Aquitaine, Emacoustic, EuGéE
Photographe : V
